Кабинет с мокрой точкой
Помещения для бизнеса в удобных локациях
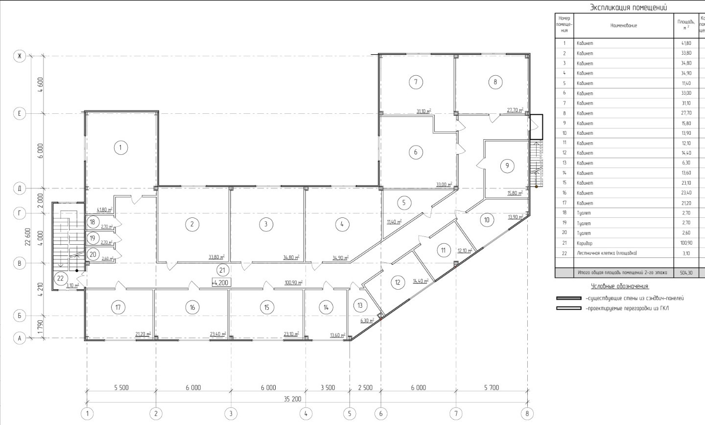
Сдается в аренду новый современный офис.
ПОМЕЩЕНИЕ:
- Располагается на втором этаже отдельного нежилого здания;
- Имеет два отдельных входа;
- Кабинетная планировка (16 кабинетов);
- Лаунж зона;
- Сан. узлы.
ОТДЕЛКА И ОСНАЩЕНИЕ:
- В коридоре и туалетах полностью готовый ремонт;
- Пол: полимерное напольное покрытие;
- Потолок: окрашен в графитовый цвет;
- В каждом кабинете установлены двери;
- Разведена базовая электрика;
- Радиаторное отопление;
- В КАЖДЫЙ кабинет подведена холодная и горячая вода (мокрые точки) и канализация;
- Установлены датчики пожарной безопасности;
- Проведен кабельный Интернет (провайдер МТС);
РАСПОЛОЖЕНИЕ:
- Городской жилой район (высотные заселенные дома и новый строящийся жилой комплекс);
- Рядом остановка общественного транспорта, Администрация области, Арбитражный суд, супермаркеты, торговый центр, деловые центры;
- Близлежайшие улицы: Мира, Горького, Токарева, проспект Строителей, Октябрьский проспект;
- Непосредственно перед зданием имеется собственная парковка.
ПРИГЛАШАЕМ ДЛЯ СОТРУДНИЧЕСТВА АРЕНДАТОРОВ:
- Услуги: салоны красоты, барбершоп, студии ногтей, фитнес-клубы;
- Образование и досуг: детские центры, студии творчества, курсы, клубы по интересам;
- Здоровье и медицина: клиники, косметологии, стоматологии,вет.клиники;
- Сопутствующая торговля: аптеки, оптика, цветы, товары, пункты выдачи заказов;
- Возможно размещение общепита: кофейня, бургерная, пиццерия, столовая.
УСЛОВИЯ АРЕНДЫ:
- Арендодатель ИП УСН;
- Арендные каникулы или льготный период;
- Обеспечительный платеж;
Коммунальный платежи в ставку аренды не включены.









Ссылка на объявление: https://ndn33.ru/estate/rentcommercial/91470
400 000 в месяц за все
Дмитрий Разживин


Владимирская область, Владимир, улица Студенческая, д 20

Информация по объекту

Вид объектаОфис Площадь510 Этаж2 Юридический адресПредоставляется ПланировкаОткрытая Кол-во мокрых точек1 СостояниеТиповой ремонт МебельНет НалогУСН (упрощенная система налогообложения)

Информация по зданию

Тип строенияДеловой центр Этажей в доме2 КатегорияДействующее ОтоплениеАвтономное ДоступСвободный ПарковкаНаземная

Цена и условия сделки

Тип арендыПрямая Срок арендыДлительный Арендные каникулыЕсть Предоплата1

В ставку включены

Инфраструктура