phone_in_talk
+7 (910) 777-32-11
mark_email_read
ndn33@mail.ru
location_on
г.Владимир, ул.Гагарина, д.13, офис 10
vk_in
Наше Дело - Недвижимость
Мы помогаем бизнесу
dehaze
Недвижимость
Продажа коммерческой недвижимости
Аренда коммерческой недвижимости
Квартиры
Дома и коттеджи
Продажа коммерческой земли
О нас
Отзывы о нашей работе
Блог
Личный кабинет
Новости
Политика конфиденциальности
Спрос
Продажа бизнеса
Контакты
Оставить заявку
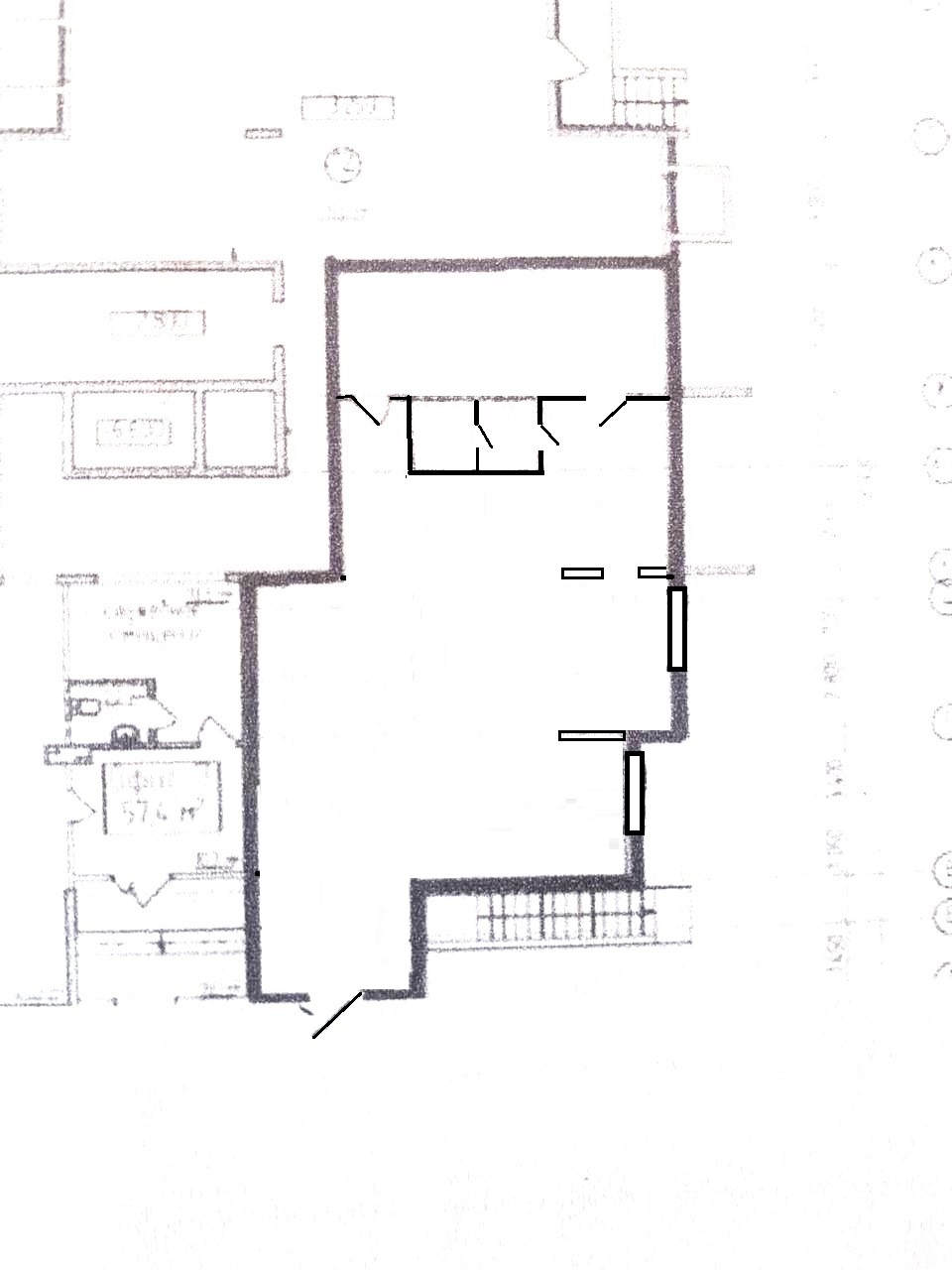
Помещение, 114 м²
Помещения для бизнеса в удобных локациях
Главная
/
Недвижимость
/
Аренда коммерческой недвижимости
/
Объект №92199
Сдается нежилое помещение 114 кв.м. с отдельным входом на Верхней Дуброве в районе Чижика. Торговля, офис, бьюти, Ваши предложения. Без комиссии с арендатора.
Ссылка на объявление:
https://ndn33.ru/estate/rentcommercial/92199
90 000
₽
в месяц за все
+7 (920) 620-64-44
Константин
Оставить заявку
Владимирская область, Владимир, улица Верхняя Дуброва, д 42
Информация по объекту
Вид объекта
Торговая площадь
Площадь
114
Этаж
1
Юридический адрес
Предоставляется
Кол-во мокрых точек
1
Электрическая мощность
15
Состояние
Типовой ремонт
Мебель
Нет
Налог
УСН (упрощенная система налогообложения)
Информация по зданию
Тип строения
Жилой дом
Этажей в доме
9
Высота потолков
2.5
Доступ
Свободный
Цена и условия сделки
Тип аренды
Прямая
Срок аренды
Длительный
Минимальный срок аренды от
11
Обеспечительный платеж
90000
Предоплата
1
В ставку включены
Инфраструктура