Помещение, 966 м²
Помещения для бизнеса в удобных локациях
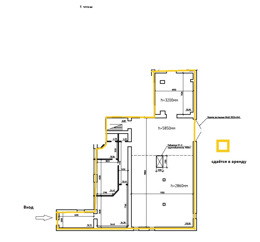
Сдается помещение, преимущественно свободная планировка, 3 этажа. РТС д.1. Огороженная территория, идеально для легкого производства с офисным блоком. Возможность размещения швейного производства, легкой металлообработки, производства сувенирной продукции, рекламных агентств и производств. Первый этаж - два отдельных входа в офисную и производственную часть, большие ворота, кран балка, стартовая площадка грузового подъемника на 1 тонну, буферная зона склада. Второй этаж - свободная планировка, санузлы, раздевалка, 3 этаж - свободная планировка.Ссылка на объявление: https://ndn33.ru/estate/rentcommercial/92564
480 000 в месяц за все
Алексей


Владимирская область, Владимир, улица Посёлок РТС, д 1

Информация по объекту

Вид объектаПроизводство Площадь966 Этаж1 Юридический адресПредоставляется ПланировкаОткрытая Кол-во мокрых точек4 Электрическая мощность150 СостояниеТиповой ремонт МебельНет НалогУСН (упрощенная система налогообложения)

Информация по зданию

Тип строенияПроизводственно-складской комплекс Класс зданияB Этажей в доме3 Высота потолков3 КатегорияДействующее ВентиляцияПриточная ОтоплениеАвтономное Система пожаротушенияГидрантная ДоступСвободный ПарковкаНаземная Количество мест парковки15

Цена и условия сделки

Тип арендыПрямая Срок арендыДлительный Минимальный срок аренды от11 Арендные каникулыЕсть Обеспечительный платеж650000 Предоплата1

В ставку включены

check Эксплуатационные расходы

Инфраструктура

check Гостиница check Складские помещения