Помещение в аренду на Белоконской
Помещения для бизнеса в удобных локациях
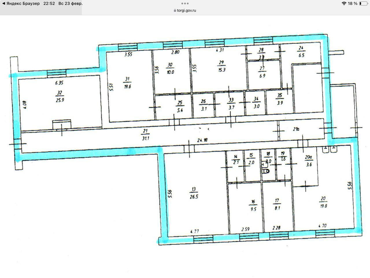
Предлагается в аренду производственно-складское помещение с частью офисных помещений.

Подойдет для небольшого производства, для хранения, подготовки и сортировки продукции для маркетплейсов, также возможно будет комфортно работать компаниям которые оказывают услуги населению. Часть помещений можно использовать как офисные. От трассы М7 расстояние 500-700 метров. Большегрузы не подъедут!!!

Площадь 217,5 кв.м, возможна аренда части помещений.
1 Этаж
Отдельный вход. Вход находится в стороне от проезжей части, с торца дома.
Обособленные помещения площадью от 15 до 26 кв.м
Хороший подъезд
Естественное освещение
Подъезд прямо ко входу. Небольшая стоянка перед входом.

Коммуникации:
Отдельный санузел.
Электроэнергия 15кВт
Центральное отопление.

Комфортные условия по аренде.
Рассматриваем вариант выкупа помещения арендатором в будущем.

Ссылка на объявление: https://ndn33.ru/estate/rentcommercial/92687
15 000 за м² в месяц
3 262 500 в месяц за все
Роман Владимирович


Владимирская область, Владимир, улица Белоконской, д 8А

Информация по объекту

Вид объектаПомещение свободного назначения Площадь217.5 Этаж1 ПланировкаСмешанная Кол-во мокрых точек2 Электрическая мощность15 СостояниеТребуется косметический ремонт МебельНет НалогУСН (упрощенная система налогообложения)

Информация по зданию

Тип строенияЖилой дом Этажей в доме9 Высота потолков2.2 ВентиляцияЕстественная КондиционированиеНет ОтоплениеЦентральное ДоступСвободный

Цена и условия сделки

Тип арендыПрямая Срок арендыНа несколько месяцев Минимальный срок аренды от11 Арендные каникулыЕсть Обеспечительный платеж15000 Предоплата1

В ставку включены

Инфраструктура