Промплощадка со Зданием
Помещения для бизнеса в удобных локациях
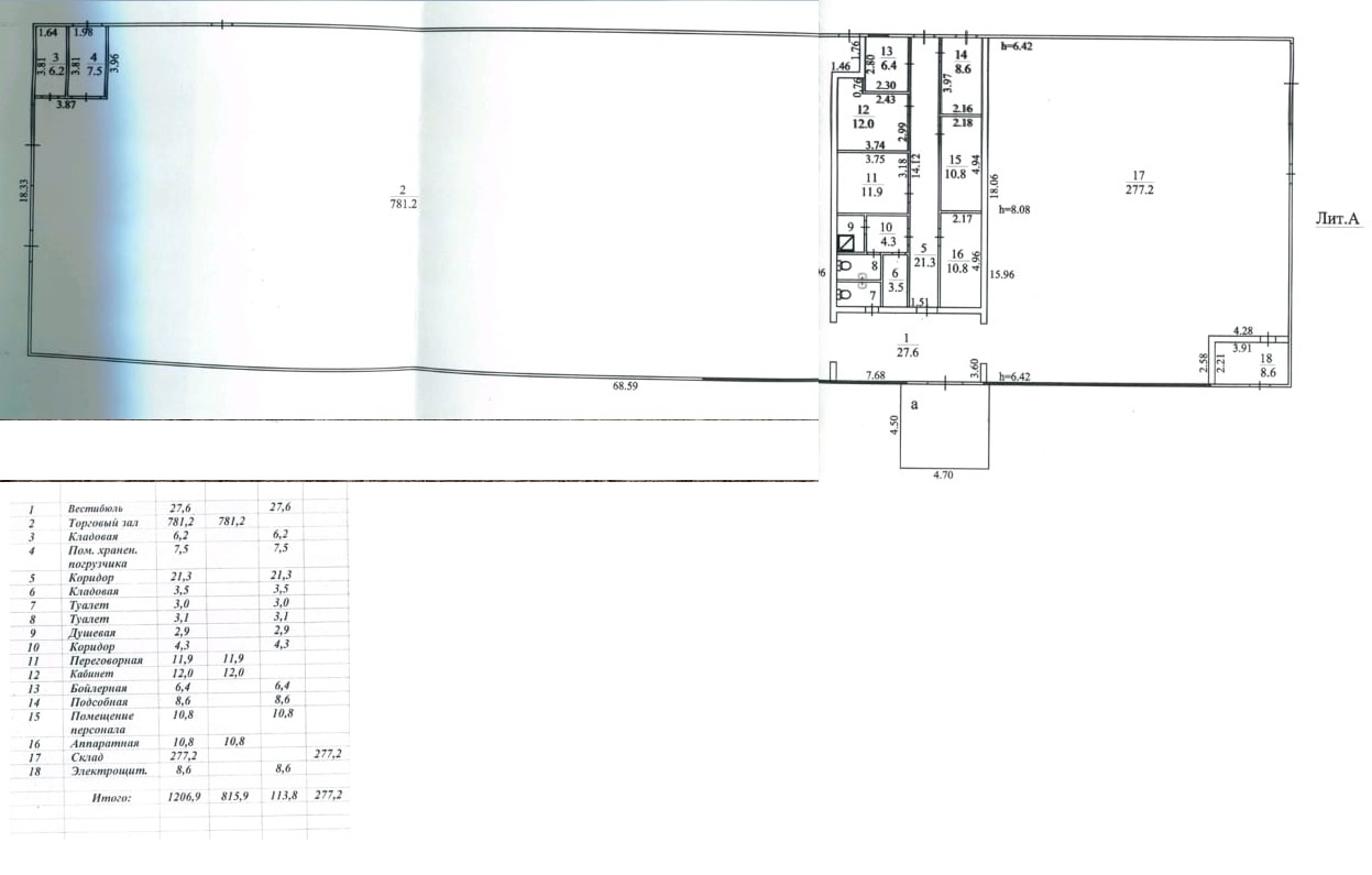
Продам производственно-складскую промплощадку.

Земельный участок, кадастровый номер 33:12:010833:284, площадью 14 879 метров (1,49 Га), в собственности.
Категория земель: Земли поселений (земли населённых пунктов)

На земельном участке раположены:

• Нежилое здание, площадью 1 206,9 кв.метров, одно объёмное прямоугольной формы, с размерами 68 на 18 метров, из металлоконструкции RUUКKI, с утеплением стен 25 см, потолка 15 см, высотой 6 метров, въездные ворота с двух торцов здания 3,5 на 4 метра.
• Нежилое здание котельной, одноэтажное, площадью 30 кв.метров.
• Сооружение: газопровод высокого давления, оформленный в собственность, протяжённостью 800 метров.
• Залита фундаментная плита под здание с размерами 30 на 15 метров, проект здания сделан.
• Навес металлический для открытого хранения материалов размерами 20 на 10 метров.

Инженерные сети:

Отопление – газовая котельная с качественным немецким оборудованием, 3 котла марки «BAXI».
Электроснабжение – осуществляется на основании договора
энергоснабжения № 33200231004260 от 01.06.2021 г. с ООО «Энергосбыт Волга» (ООО «ЭСВ»)
Трансформатор 63 кВа в собственности.
Водоснабжение – скважина.
Канализация – объект имеет возможность подключения к центральной канализации.

Инженерные системы и оборудование принадлежат на праве
собственности и не обременены правами третьих лиц.

Ссылка на объявление: https://ndn33.ru/estate/salecommercial/5735
50 900 000
Роман


Владимирская область, Собинский район, деревня Васильевка, д 43

Информация по объекту

Площадь1206 Этаж1 Этажей в доме1 Высота потолков6 Юридический адресПредоставляется ПланировкаОткрытая Кол-во мокрых точек2 Электрическая мощность50 СостояниеТиповой ремонт МебельЕсть ДоступСвободный ПарковкаНаземная НалогУСН (упрощенная система налогообложения)

Информация по зданию

Тип строенияПромплощадка Класс зданияA Площадь здания1206 КатегорияДействующее ВентиляцияПриточная КондиционированиеМестное ОтоплениеАвтономное Система пожаротушенияГидрантная

Инфраструктура