Здание склада на своём земельном участке
Помещения для бизнеса в удобных локациях
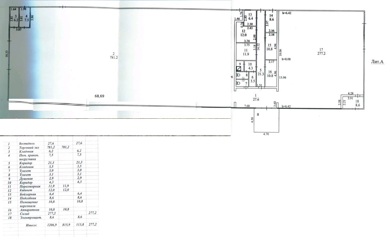
Продам здание свободного назначения, площадью 1 206,9 кв.метров на земельном участке 30 соток.
Нежилое здание, открытой планировки, прямоугольной формы, с размерами 68 на 18 метров,
из металлоконструкции RUUКKI, с утеплением стен 25 см, потолка 15 см, высотой 6 метров,
въездные ворота с двух торцов здания 3,5 на 4 метра.
Базовое подключение к сетям предоставим (газ, электричество).
Земельный участок будет выделен из земельного участка площадью 14 879 метров (1,49 Га),
с кадастровый номер земельного участка: 33:12:010833:284
Категория земель: Земли поселений (земли населённых пунктов).
К зданию будет обеспечен проезд посредством сервитута.

В рамках дополнительной сделки возможно приобрести:
- Земельный участок, площадью 1 Га, ВРИ: для размещения торгового объекта (рынок строительных материалов)
- Нежилое здание котельной, одноэтажное, площадью 30 кв.метров
- Сооружение: газопровод высокого давления, оформленный в собственность, протяжённостью 800 метров
- Фундамент (бетонная плита) под здание с размерами 30 на 15 метров, проект здания сделан
- Навес металлический для открытого хранения материалов размерами 20 на 10 метров.
Инженерные сети:
Газовая котельную с качественным немецким оборудованием, 3 котла марки «BAXI».
Трансформатор 150 кВт, электроснабжение осуществляется на основании договора энергоснабжения
№ 33200231004260 от 01.06.2021 г. с ООО «Энергосбыт Волга» (ООО «ЭСВ»).
Объекты не обременены правами третьих лиц.
Ссылка на объявление: https://ndn33.ru/estate/salecommercial/7839
35 000 000
Роман Евгеньевич


Владимирская область, Собинский район, Лакинск, улица Карла Маркса, д 21

Информация по объекту

Площадь1026 Этаж1 Этажей в доме1 Высота потолков6 Юридический адресПредоставляется ПланировкаОткрытая Кол-во мокрых точек1 Электрическая мощность50 СостояниеТиповой ремонт МебельНет ДоступСвободный ПарковкаНаземная Количество мест парковки20 НалогУСН (упрощенная система налогообложения)

Информация по зданию

Год постройки2014 Тип строенияСклад Класс зданияA Площадь здания1206 КатегорияДействующее ВентиляцияПриточная КондиционированиеНет ОтоплениеАвтономное Система пожаротушенияСигнализация

Инфраструктура