Производственное здание в черте города
Помещения для бизнеса в удобных локациях
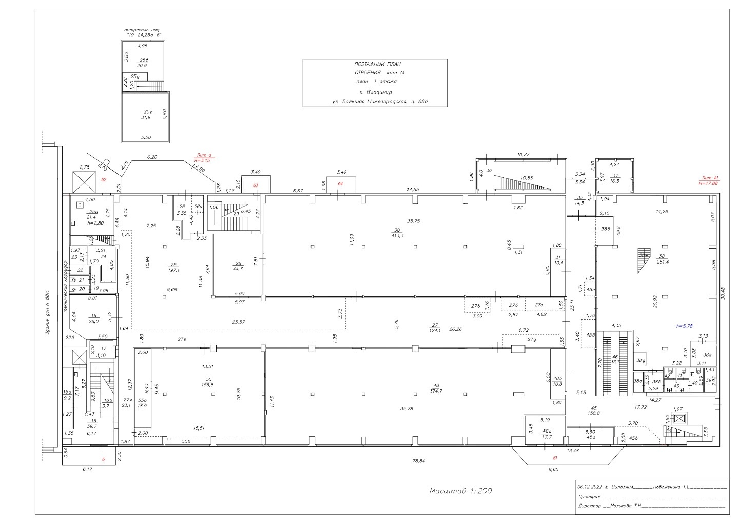
Продам отдельно стоящее здание в черте города.
Бывшее швейное производство, удобная локация, остановка.
На данный момент перепрофилировано под торгово-развлекательный центр.
Большой земельный участок в собственности, парковка, разгрузка.
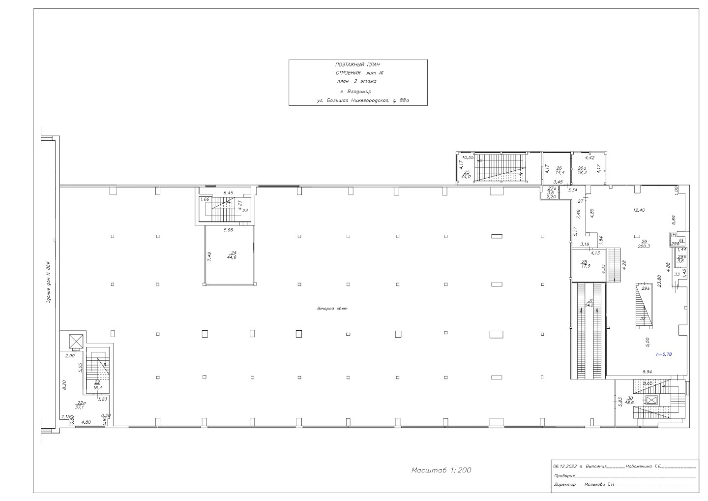
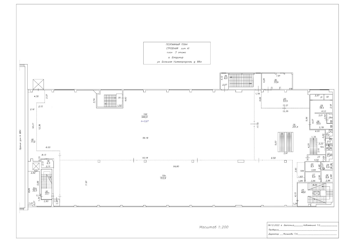
B Здании 4 этaжa, эскалатор, лифты, две лестницы, сделан ремонт:
пол плитка керамогранит, освещение 60-60 светодиоды,
потолки подвесные Грильято.
Высота потолка 4,5 метров, фасад здания - стеклянные витражи.
Собственная система кондиционирования, приточно-вытяжная вентиляция,
свой тепловой узел, санузлы на каждом этаже, предусмотрены запасные
пожарные выходы, установлена пожарная и охранная сигнализация,
круглосуточная охрана здания, система дымоудаления,
видеонаблюдение, электрическая мощность 650 кВт.
Здание без каких либо обременений.
Ссылка на объявление: https://ndn33.ru/estate/salecommercial/7840
330 000 000
Василий Миронов


Владимирская область, Владимир, улица Большая Нижегородская, д 88

Информация по объекту

Площадь6556 Этаж1 Этажей в доме4 Высота потолков4.5 Юридический адресПредоставляется Помещение занятоДа ПланировкаОткрытая Кол-во мокрых точек4 Электрическая мощность300 СостояниеТиповой ремонт МебельНет ДоступСвободный ПарковкаНаземная Количество мест парковки80 НалогНДС не включен

Информация по зданию

Тип строенияПроизводственное здание Класс зданияA Площадь здания6556 КатегорияДействующее ВентиляцияПриточная КондиционированиеМестное ОтоплениеАвтономное Система пожаротушенияСпринклерная

Инфраструктура


check Автомойкаcheck Буфетcheck Автосервисcheck Столоваяcheck Гостиницаcheck Банкомат check Аптекаcheck Медицинский центрcheck Салон красотыcheck Бассейн check Ателье одеждыcheck Складские помещенияcheck Фитнес-центрcheck Супермаркетcheck Минимаркет check Торговая зонаcheck Конференц-зал