Продажа помещения в центре
Помещения для бизнеса в удобных локациях
Продажа

Продается идеальное помещение действующего банка в самом центре Владимира!

Адрес: г. Владимир, проспект Ленина, дом 9.

Преимущества помещения:
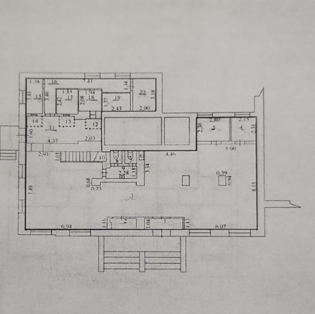
- Общая площадь: *306 м²*
- Первый этаж: *207,9 м²*, идеально подходит для организации медицинской и стоматологической клиники, офисного пространства премиум-класса, отделения банка либо финансовой службы, страховые организации, торговая площадь.
- Подвал: *98,1 м²*, удобный организации склада, мастерской, для хранения документов и оборудования
- Великолепная входная группа и 4 панорамных окна, создающие атмосферу престижа и комфорта
- Наличие двух отдельных входов
- Удобная транспортная доступность: остановка общественного транспорта «улица Пичугина»

Идеально подойдет для:
- Представительства банков
- Финансовых компаний
- Страховых организаций
- Открытия флагманских офисов

- Магазины и бутики


!!!!! Внимание. Сейчас в помещении Арендатор. Окончание срока аренды - декабрь 2025 года МАП 350 000 рублей
Ссылка на объявление: https://ndn33.ru/estate/salecommercial/7849
57 000 000
Алексей


Владимирская область, Владимир, проспект Ленина, д 9

Информация по объекту

Площадь306 Этаж1 Этажей в доме5 Высота потолков3.2 Юридический адресПредоставляется Помещение занятоДа ПланировкаОткрытая Кол-во мокрых точек2 Электрическая мощность30 МебельНет ДоступСвободный НалогУСН (упрощенная система налогообложения)

Информация по зданию

Тип строенияЖилой дом

Инфраструктура